Entsprechend Ihren Wünschen planen wir maßgeschneidert für Sie.
Beispiel 1: Haus 120 qm
Erdgeschoss
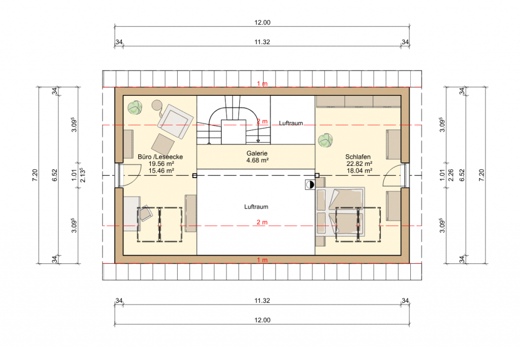
Dachgeschoss
Beispiel 2: Haus 100 qm
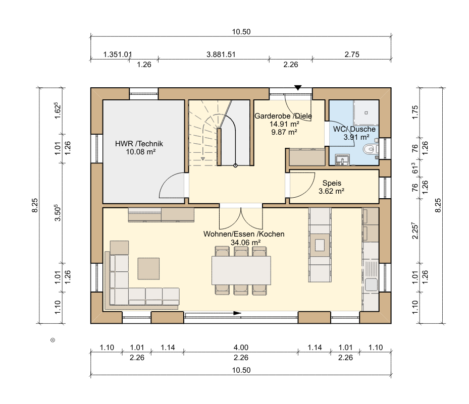
Erdgeschoss
Dachgeschoss
Beispiel 3
Erdgeschoss
Obergeschoss
Sie sehen gerade einen Platzhalterinhalt von Standard. Um auf den eigentlichen Inhalt zuzugreifen, klicken Sie auf die Schaltfläche unten. Bitte beachten Sie, dass dabei Daten an Drittanbieter weitergegeben werden.